Active
Freestanding Office Building | Georgetown, KY
104 Market Path, Georgetown, KY 40324
1 / 14

Overview
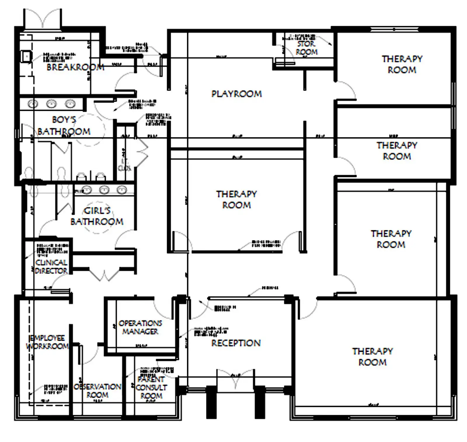
We are pleased to present a freestanding office building for lease in Georgetown. Adjacent to the an upcoming 26,875 SF Lexington Clinic Facility, this space provides convenience and good visibility. Easy access to I-75, Toyota Motor Manufacturing Plant, downtown Georgetown, and Georgetown College.
- +/- 4,198 SF freestanding office building
- Situated on a +/- .764 AC parcel with an existing fenced outdoor area
- Available 6/1/2026
- 26 on-site parking spaces currently in place
- Located in close proximity to Kroger Marketplace development and Georgetown Community Hospital
- Directly adjacent to Washington Square Shopping Center; New 26,875 SF Lexington Clinic Facility coming soon
- Area retailers include Walmart, Kohls, Lowe's, Petsense, Aldi and more
- Easy access to I-75, Toyota Motor Manufacturing Plant, downtown Georgetown and Georgetown College
- Rental Rate: $20.00 PSF NNN
Lease Spaces
| Name | Floor | Rate | SF | Acres | Former Use | Available Date | Status |
|---|---|---|---|---|---|---|---|
| Building | 1 | $20 /SF/Year | 4,198 SF | 0.764 ac | Day Care Facility | 06/01/2026 | available |
For Lease
Office
Retail
Secondary Uses: Day Care Facility, Office Building
- Lease Rate
- $20 SF/year
- Available SF
- 4,198 SF
- Building Size
- 4,198 SF
- Acres
- 0.764 ac
- Zoning
- B-1
- Zoning Desc.
- Neighborhood Commercial
- Lease Type
- NNN
- Showing
- Contact Broker/Agent
- Building Class
- A
- Year Built
- 2000
- Parking Type
- Surface
- Parking Spaces
- 26
- Tenancy
- Single Tenant
- County
- Scott
- Available
- 06/01/2026
- Listed
- 02/02/2026
- Updated
- 02/02/2026
- Listing ID
- f8649376
- Parcel APN
- 168-10-357.000












