Active
Prime Medical Office For Sale
1606 US-27, Cynthiana, KY 41031
1 / 27

Overview
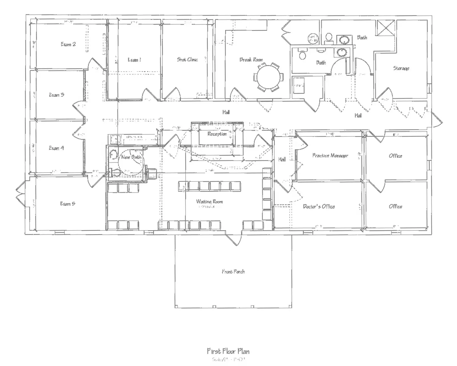
We are pleased to present 1606 US Highway 27 N FOR SALE — a move-in-ready medical office building in Cynthiana, Kentucky. Just minutes from Harrison Memorial Hospital and several elementary schools, this highly visible location offers an excellent opportunity for a medical or professional user looking to own their real estate in a growing central Kentucky market.
Move-in readyAmple parkingSignage on US HWY 27 NFive fully plumbed exam rooms, four private offices, and lab roomWaiting room comfortably seating over 20 patientsA patient restroom, and two staff restroomsHandicap accessible
Attachments
Links
For Sale
Healthcare
- Sale Price
- $410,000
- Price Per SF
- $125.2/SF
- Building Size
- 3,276 SF
- Acres
- 2.8124 ac
- Zoning
- B
- Building Name
- Prime Medical Office For Sale
- Building Class
- B
- Floors
- 1
- Year Built
- 1982
- Vehicles Per Day
- 4,907 VPD
- County
- Harrison
- Available
- 11/25/2025
- Created
- 11/26/2025
- Updated
- 11/26/2025
- Listing ID
- b9425e3e
- Parcel APN
- 102-0000-008-00-000

























